Sfeervolle maisonnette vlak bij het centrum
Aan de President Steinstraat 1B, in het populaire Morskwartier / Wijk Transvaal, ligt deze charmante dubbele bovenwoning. De woning bevindt zich in een rustige en aangename woonstraat op korte afstand van het centrum van Leiden. Dankzij de combinatie van een praktische indeling, veel lichtinval en prettige ruimtes is dit een woning die geschikt is voor starters, gezinnen of iedereen die comfortabel wil wonen nabij de stad.
De locatie is bijzonder gunstig. In de directe omgeving bevinden zich diverse voorzieningen zoals supermarkten, scholen en sportfaciliteiten. Ook het openbaar vervoer is gemakkelijk bereikbaar. Het levendige centrum van Leiden ligt op korte afstand en via de nabijgelegen uitvalswegen – waaronder de A44, N434, A4 en N206 – zijn omliggende steden goed te bereiken.
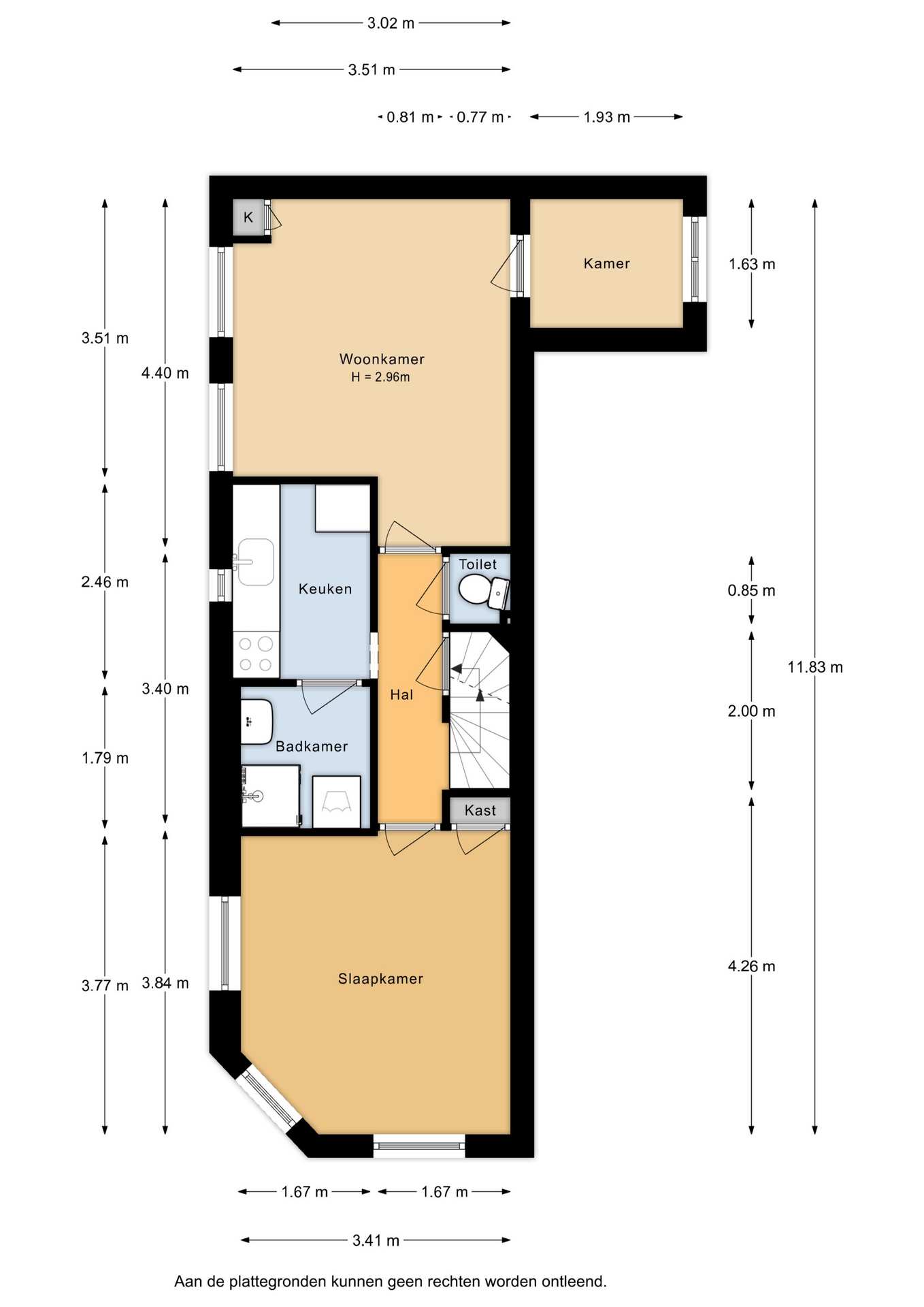
Via de eigen opgang bereikt u de eerste verdieping van de woning. Hier bevindt zich direct de keuken, die praktisch is ingericht. Vanuit de keuken loopt u door naar de ruime woonkamer, waar de grote ramen zorgen voor een prettige hoeveelheid daglicht. Aangrenzend ligt een extra kamer die zich goed leent als slaapkamer, thuiswerkplek of studeerkamer. Op deze verdieping bevindt zich tevens de functioneel ingerichte badkamer met de benodigde voorzieningen.
Op de tweede verdieping zijn twee ruime kamers aanwezig. Deze ruimtes kunnen flexibel worden gebruikt als slaap-, werk- of hobbykamer. De kamer aan de rechterzijde van de trap geeft toegang tot een buitenruimte waar u rustig kunt genieten van bijvoorbeeld een kop koffie in de ochtendzon of een lange zomeravond. Beide kamers bieden daarnaast toegang tot de vliering, die veel bergruimte biedt.
Bijzonderheden:
– Ouderdomsclausule, niet-bewonersclausule en asbestclausule van toepassing
– Hele woning voorzien van dubbele beglazing
– Bouwjaar ca. 1929
– Parkeren in directe omgeving betaald en voor vergunningshouders (zone B1.4 vergunning voor €61,00 per jaar)
– Gelegen nabij stadscentrum en station
– De Vereniging van Eigenaars (VvE) is momenteel in oprichtingsfase
– Door de schuine wanden op de tweede woonlaag is het feitelijk bruikbare vloeroppervlak groter dan het officieel gemeten woonoppervlak
Kenmerken
| Plaats | Leiden |
|---|---|
| Vraagprijs | 345.000 k.k. |
| Status | Beschikbaar |
| Beschikbaar per | In overleg |
| Soort woning | Appartement |
| Energielabel | E |
| Woonoppervlakte | 81m² |
| Aantal kamers | 5 |
| Voorzieningen | Mechanische ventilatie, natuurlijke ventilatie |
| Parkeren | Parkeervergunningen |









Persoonlijk






