Stel je voor: een rustige straat aan de rand van het bruisende centrum. Het zachte geroezemoes van de stad op de achtergrond, maar zodra je de voordeur sluit, is er alleen nog rust.
Dit is de Prins Frederikstraat, in het geliefde Noorderkwartier. En achter deze gevel schuilt geen gewoon huis, maar een zelfstandig loft appartement klaar om te bewonen, te verhuren of helemaal naar eigen smaak te transformeren.
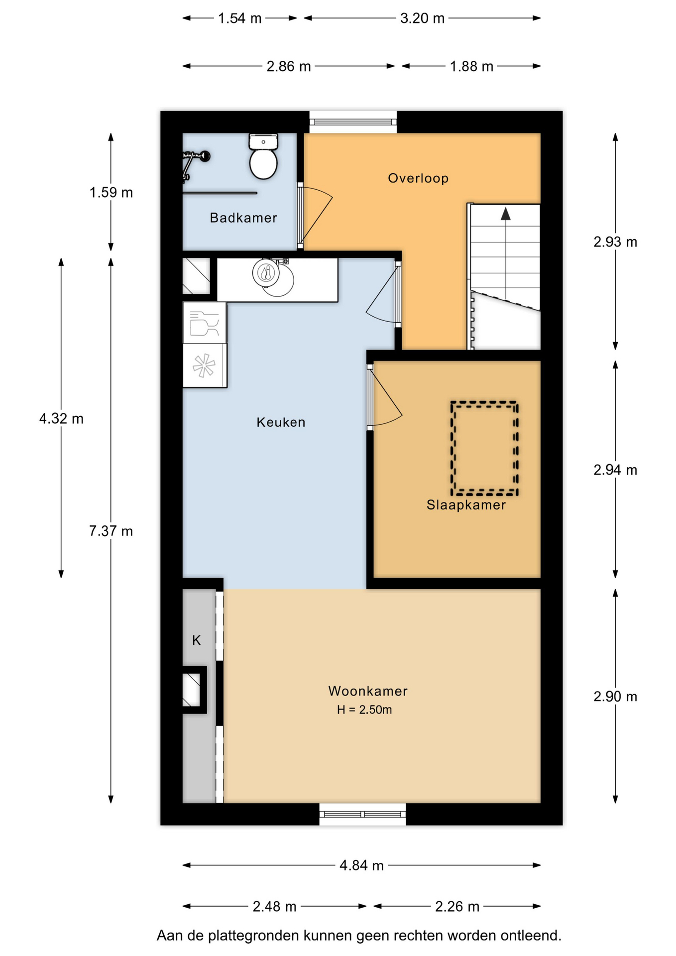
Onder de schuine kap op de tweede etage voel je meteen de sfeer. De zichtbare dakconstructie geeft karakter, de woonkamer aan de voorzijde is intiem en knus.
De woonkeuken is een uitnodiging voor lange avonden koken en praten, en de moderne badkamer maakt het plaatje compleet. Een slaapkamer in het midden maakt het geheel praktisch en gezellig tegelijk.
Met de stad op loopafstand, winkels om de hoek en het openbaar vervoer binnen handbereik, is dit een plek waar het leven soepel loopt – en waar elk appartement zijn eigen verhaal schrijft.
Dit is heerlijk thuiskomen na een middagje winkelen of borrelen in de binnenstad.
Bijzonderheden:
– Vraagprijs € 235.000 (kosten koper)
– Bouwjaar: 1905
– Woonoppervlakte: 44m²
– Oplevering in overleg; mogelijk op korte termijn
– Gemeubileerde oplevering;
– Energielabel: G
– Actieve Vereniging van Eigenaren (VvE), recent opgericht
– VvE-bijdrage: € 91,- per maand
– Loopafstand van winkels en openbaar vervoer
– Niet-bewoningsclausule, asbestclausule en ouderdomsclausule zijn van toepassing
Kenmerken
| Plaats | Leiden |
|---|---|
| Vraagprijs | 235.000 k.k. |
| Status | Beschikbaar |
| Beschikbaar per | In overleg |
| Soort woning | Appartement |
| Bouwjaar | 1905 |
| Energielabel | G |
| Woonoppervlakte | 44m² |
| Aantal kamers | 2 |
| Voorzieningen | Dakraam, natuurlijke ventilatie |
| Parkeren | Betaald parkeren |














Persoonlijk

