Op fietsafstand gelegen van het centrum van Leiden en met natuur, sport en recreatie op loopafstand ligt deze fijne gezinswoning met twee badkamers en 4 slaapkamers in de gezellige en kindvriendelijke ‘Merenwijk’.
Scholen, winkels, supermarkten en zelfs een park met een kinderboerderij liggen allemaal binnen handbereik van dit ruime huis. Parkeren is vrij en kan voor de deur, het openbaar vervoer is goed verzorgd en zeer toegankelijk.
Zo is het centraal trein- en busstation op 10 min. fietsafstand. Dagelijks uitwijken naar bijvoorbeeld Den Haag, Amsterdam of de ‘bollenstreek’ kan makkelijk met de auto via de goed bereikbare uitvalswegen als de A4 en A44.
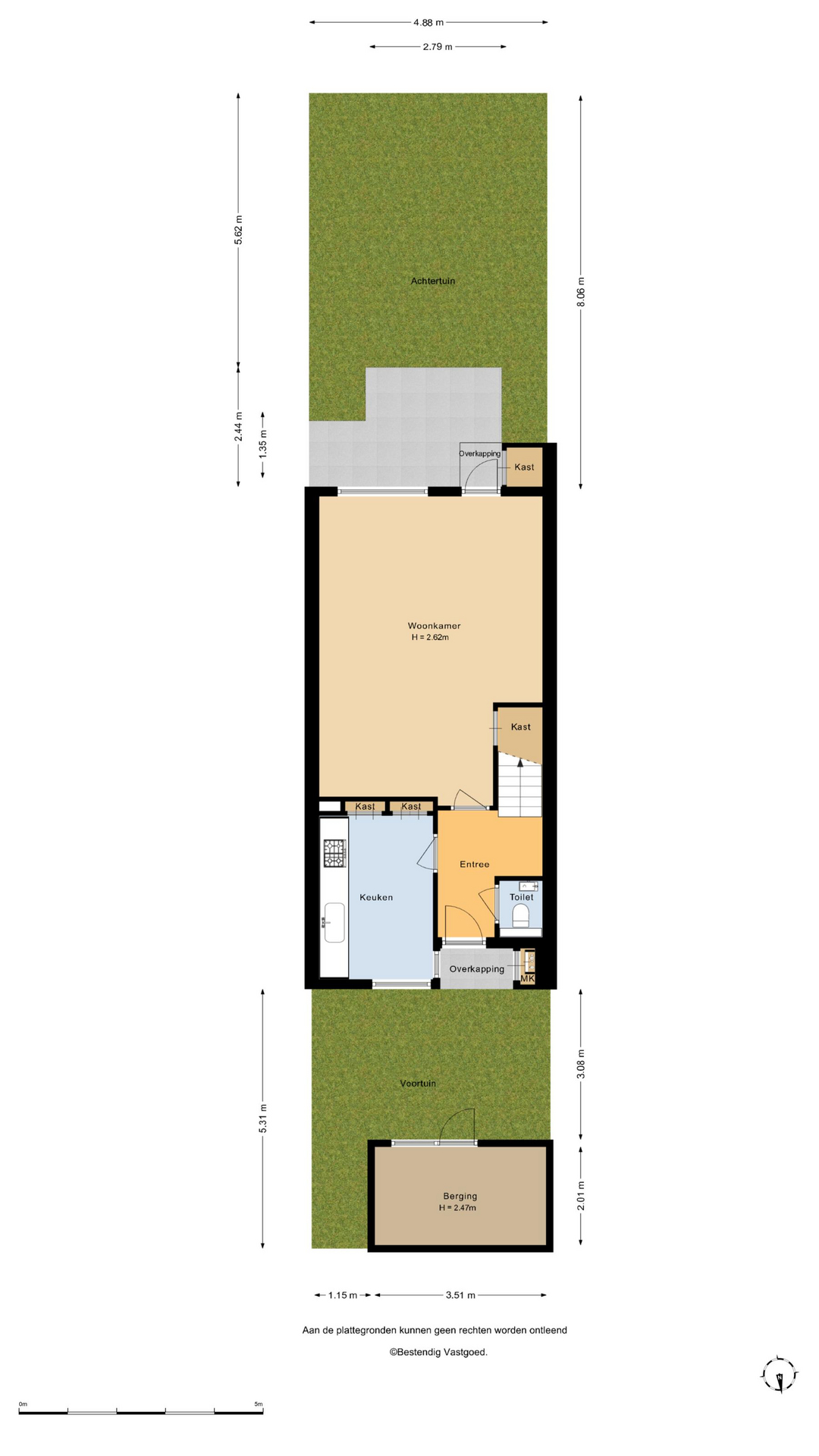
Vanaf de rustige, autoluwe straat is de entree van de woning door de aparte schuur onttrokken aan het directe zicht vanaf de stoep en geeft toegang tot de centrale hal waarvandaan het gastentoilet alsmede de keuken en woonkamer bereikbaar zijn.
De lekker gelegen woonkamer is licht en geeft direct zicht op en toegang tot de groene en goed onderhouden achtertuin gelegen op het Zuidwesten. De vaste kast biedt ruimte voor opslag. De keuken is eenvoudig en separaat.
Middels de centrale trap zijn op de eerste etage twee ruime slaapkamers en de 1e badkamer te vinden. De slaapkamer aan de achterzijde biedt tevens toegang tot een eigen balkonnetje en sfeervol zicht op de eigen tuin en groene omgeving.
De strakke en moderne badkamer is voorzien van een brede wastafel met badmeubel, toilet en wandkast alsmede een ruime inloopdouche.
Op de tweede etage treffen we nog eens twee goede slaapkamers aan, een technische ruimte met wasmachine opstelling én een tweede badkamer in dezelfde moderne stijl als de eerste en voorziet in een douche en wastafel met lademeubel.
De kozijnen en deuren van de woning zijn in Mei 2022 volledig vernieuwd en voorzien van HR++ isolatieglas. De dakbedekking is vernieuwd in Februari 2026, volledig geĂ¯soleerd en de woning is voorzien van een nieuwe regenpijp. Daarnaast heeft de woning spouwmuurisolatie en vloerisolatie.
Bijzonderheden:
– WOZ: € 534.000 peildatum ’25
– oppervlakte: 133m2
– slaapkamers: 4
– badkamers: 2
– beschikbaar: in overleg
– energielabel: B
– parkeren: in de straat, vrij
– kozijnen en deuren volledig vernieuwd mei ’22
– dakbedekking vernieuwd in februari ’26
Kenmerken
| Plaats | Leiden |
|---|---|
| Vraagprijs | 525.000 k.k. |
| Status | Verkocht_onder_voorbehoud |
| Beschikbaar per | In overleg |
| Soort woning | Woonhuis |
| Bouwjaar | 1976 |
| Energielabel | B |
| Woonoppervlakte | 133m² |
| Aantal kamers | 5 |
| Ligging tuin | Zuid |
| Bergruimte | Vrijstaand steen |
| Opp. bergruimte | 7m² |
| Perceel m² | 115m² |
| Voorzieningen | Mechanische ventilatie, tv kabel, natuurlijke ventilatie |
| Parkeren | Openbaar parkeren |









Persoonlijk




