Wonen in hartje Leiden – Stijlvol dubbelbovenhuis met dakterras op toplocatie
Op zoek naar karakter, comfort én de bruisende stad aan je voeten? Dit instapklare dubbelbovenhuis in de geliefde Haarlemmerstraat combineert het allemaal. Gelegen in het historische centrum van Leiden, tussen boetieks, koffiezaken en grachten, vind je deze charmante maisonnette met twee slaapkamers, energielabel A én een heerlijk dakterras.
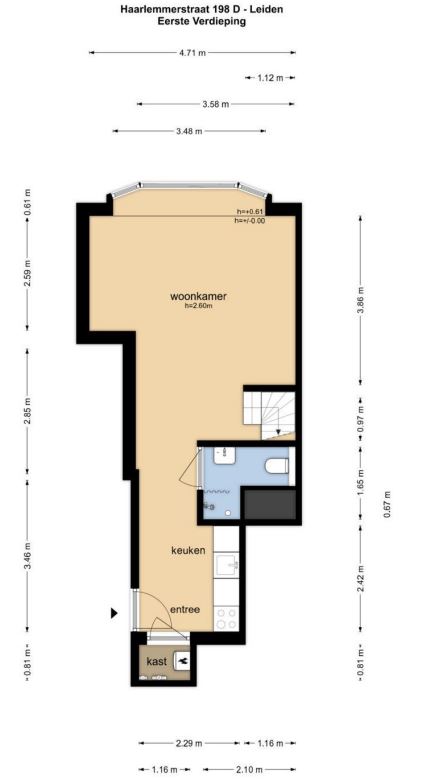
Indeling:
Via de gemeenschappelijke entree op de begane grond bereik je de woning. Bij binnenkomst stap je direct de moderne keuken in (2021), voorzien van strakke inbouwapparatuur zoals een inductiekookplaat, vaatwasser, afzuigkap en een koelkast met vriesvak. In de naastgelegen kast vind je de aansluiting voor wasmachine en droger — praktisch en uit het zicht.
De badkamer is compact maar stijlvol, met een inloopdouche, toilet en wastafel. De ruime, lichte woonkamer is afgewerkt met houtlook keramische tegels en ademt karakter dankzij het sfeervolle erkerraam met glas-in-looddetails.
Een vaste trap leidt naar de eerste verdieping, waar je op de overloop toegang hebt tot het zonnige en prettig gelegen dakterras — een zeldzame luxe in het centrum! De hoofdslaapkamer is royaal van formaat, terwijl de tweede kamer perfect functioneert als kinder-, werk- of logeerkamer.
Wonen op de Haarlemmerstraat betekent leven in de stad op z’n best: loopafstand van NS-station Leiden Centraal, musea, parken, horeca en universiteit. Kortom, een unieke kans voor wie stads wonen wil combineren met comfort, stijl en een vleugje historie.
Bijzonderheden:
– Unieke ligging in het hart van Leiden
– Energiezuinig (label A)
– Luxe keuken (2021) met inbouwapparatuur
– Authentieke details zoals glas-in-lood
– Dakterras voor buitenleven midden in de stad
– Twee slaapkamers
– Instapklaar en goed onderhouden
– Oplevering in overleg; op korte termijn mogelijk;
– Verwarming middels HR C.V. (eigendom);
– Recent opgerichte VVE;
– Maandelijkse VVE bijdrage: €238,-;
– Loopafstand winkels en openbaar vervoer;
– ‘niet bewonings-, asbest-, ouderdomsclausule’ van toepassing
– Projectnotaris: TeekensKarstens
Kenmerken
| Plaats | Leiden |
|---|---|
| Vraagprijs | 350.000 k.k. |
| Status | Verkocht |
| Beschikbaar per | In overleg |
| Soort woning | Appartement |
| Bouwjaar | 1918 |
| Energielabel | A |
| Woonoppervlakte | 58m² |
| Aantal kamers | 3 |
| Voorzieningen | Mechanische ventilatie, tv kabel, natuurlijke ventilatie |
| Parkeren | Betaald parkeren, parkeervergunningen |














Persoonlijk


