Stralend wakker worden op je zonnige balkon, met een kop koffie en het bruisende leven van de Haarlemmerstraat aan je voeten. Zo voelt wonen in dit heerlijke lichte appartement.
Wonen in het hart van Leiden, met alles wat de stad te bieden heeft letterlijk aan je voeten? Dat kan in dit verrassend lichte en fijn ingedeelde appartement aan de Haarlemmerstraat. Hier geniet je dagelijks van de levendige sfeer van de binnenstad, terwijl je thuis heerlijk rustig woont in een goed onderhouden complex.
De Haarlemmerstraat is dé winkelstraat van Leiden: van gezellige koffietentjes en boetiekjes tot fijne restaurants en sfeervolle terrassen — je hoeft alleen maar de deur uit te stappen. Ook het Centraal Station, supermarkten, bioscoop en diverse hotspots liggen allemaal op loopafstand.
Via de afgesloten gezamenlijke entree op de begane grond kom je bij de postbussen en de eigen berging, ideaal voor fietsen en opslag. De trap brengt je naar de tweede etage, waar de open galerij toegang geeft tot de woning.
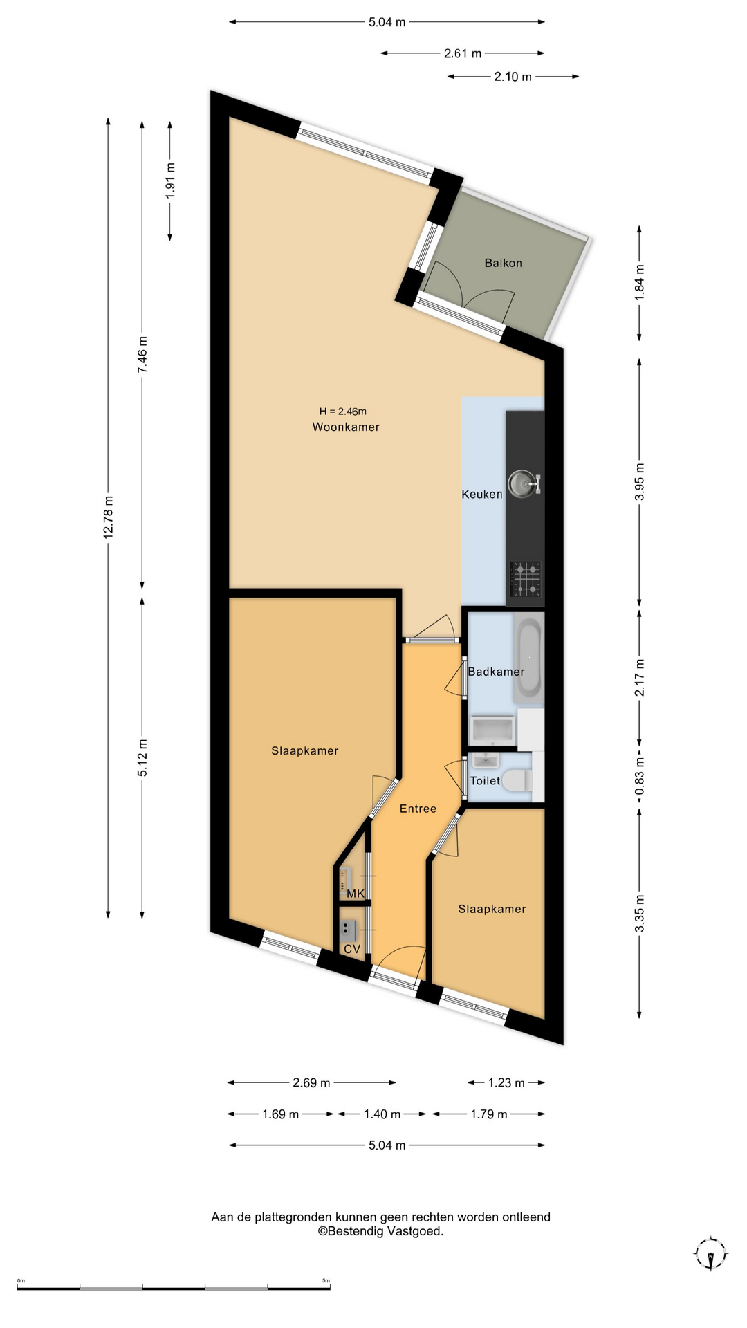
Binnenkomst in de hal met meterkast en toegang tot alle vertrekken. Aan weerszijden bevinden zich twee slaapkamers van respectievelijk ca. 12 m² en 5,3 m². De kleinere kamer beschikt over een wasmachineaansluiting en is daarmee perfect te gebruiken als werk- of studeerkamer, logeerplek of walk-in-closet.
De badkamer is voorzien van een comfortabel bad met douche, een modern wastafelmeubel en een handdoekenradiator. Het toilet is separaat en toegankelijk vanuit de hal.
De ruime woonkamer is heerlijk licht dankzij de grote raampartijen en biedt een levendig uitzicht over de gezellige Haarlemmerstraat. De open keuken is netjes en voorzien van diverse inbouwapparatuur, waaronder een oven, gaskookplaat en afzuigkap, plus veel handige opbergruimte. Hier kook je gezellig mee met vrienden aan tafel of geniet je van een rustig ontbijt in het zonnetje.
De openslaande deuren geven toegang tot het ruime balkon, waar je heerlijk kunt zitten en uitkijkt over de levendige straat beneden. Met de zon die ’s middags fijn naar binnen schijnt, is dit een heerlijke plek om te ontspannen — midden in de stad, maar toch met verrassend veel rust en privacy.
Kortom, een leuk en licht appartement op een fantastische locatie: ideaal voor starters, jonge professionals of iedereen die wil wonen in de binnenstad van Leiden met alle voorzieningen binnen handbereik. Dankzij het bouwjaar 1986 profiteer je bovendien van goede isolatie, een praktische indeling en een goed functionerende VvE.
Bijzonderheden:
– Bouwjaar: 1986
– Energielabel: A
– Woonoppervlakte: ca. 60m²
– Twee slaapkamers (ca. 12,5 m² en 5,3 m²)
– Ruim balkon met uitzicht over de Haarlemmerstraat
– Gezonde, actieve VvE
– Eigen berging op begane grond
– Toplocatie in het centrum van Leiden, vlak bij Leiden Centraal
– Vraagprijs: € 360.000,- k.k.
– Oplevering: in overleg
De verkoper aan het woord:
In dit huis zie je vanaf de bank het Leidse leven aan je voorbij trekken. Met een drankje op het balkon zitten voelt als vakantie. Je woont middenin de bruisende binnenstad, op loopafstand van alles wat je nodig hebt. Of je nou gaat sporten, een filmpje wilt pakken of toe bent aan een hapje eten: je hebt het om de hoek. Mocht je verder weg willen, dan is het Centraal Station vlakbij, net als diverse bushaltes.
De woonkamer is heerlijk licht door de grote ramen op het zuiden en heeft een prachtig uitzicht op de Haarlemmerstraat. De slaapkamers zijn door hun ligging aan de achterkant erg rustig, dus lekker slapen is, ook middenin de stad, geen enkel probleem.
Al met al een heel fijn huis van waaruit je optimaal kunt profiteren van al het moois dat Leiden te bieden heeft en waar het ook heerlijk thuiskomen is.
Kenmerken
| Plaats | Leiden |
|---|---|
| Vraagprijs | 360.000 k.k. |
| Status | Verkocht |
| Beschikbaar per | In overleg |
| Soort woning | Appartement |
| Bouwjaar | 1986 |
| Energielabel | A |
| Woonoppervlakte | 60m² |
| Aantal kamers | 3 |
| Opp. bergruimte | 2m² |
| Voorzieningen | Natuurlijke ventilatie |
| Parkeren | Betaald parkeren, parkeervergunningen |














Persoonlijk


