Ideale starterswoning met ruim balkon én privé berging nabij centrum van Leiden.
Een zonnige hoekwoning met prachtig uitzicht komt in dit pand maar weinig beschikbaar dus grijp deze kans!
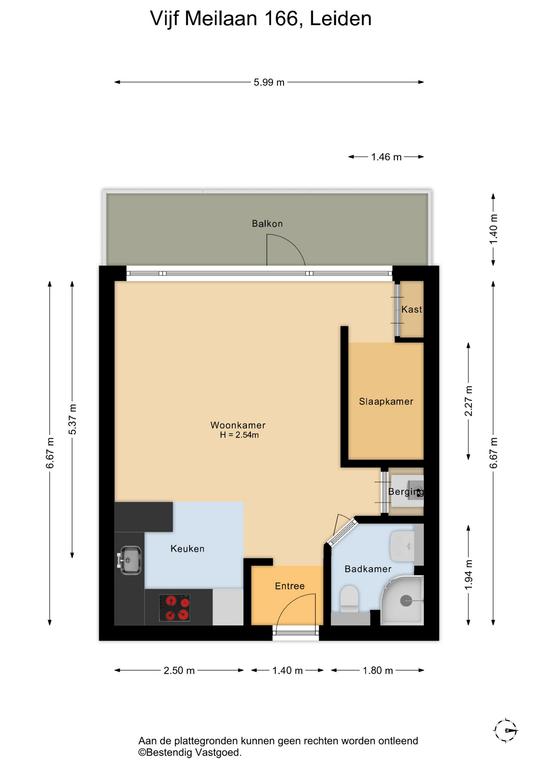
Op de 7e woonlaag van dit centraal gelegen appartementencomplex is deze nette twee kamer woning beschikbaar. Vanuit de centrale hal is de etage middels trap en lift bereikbaar. De entree komt uit in een hal waarvandaan de lichte en ruime woonkamer te bereiken is. De woonkamer, met gestukt plafond, is voorzien van een neutrale laminaatvloer en geeft toegang tot het ruime balkon, gelegen op het Westen. Het balkon volgt de volledige breedte van de woning en heeft tevens een zonnescherm. De open keuken is netjes en voorziet in een elektrische kookplaat met afzuigkap, oven, inbouwkoelkast en vaatwasser. De slaapkamer is bereikbaar vanuit de woonkamer. De nette en goed onderhouden badkamer is met toilet, een wastafel en een douche. Tevens beschikt de woning over voldoende bergruimte door de privé berging op de begane grond en een gemeenschappelijke fietsenstalling. Met het winkelcentrum de Luifelbaan op de begane grond zijn alle boodschappen snel gedaan. Verder is de woning gunstig gelegen ten opzichte van het centrum, horecagelegenheden en het centraal station (10 minuten afstand). Uitvalswegen zoals de A4, N11 en A44 zijn tevens op korte afstand gelegen.
Bijzonderheden:
• Vraagprijs € 215.000,- k.k.
• Gebruiksoppervlakte: 40m2;
• Energielabel: E
• Dubbele beglazing;
• Privé berging in souterrain;
• Privé balkon op het Westen;
• Gemeenschappelijke fietsenstalling;
• Bijdrage VvE: € 153,91 per maand exclusief voorschot stookkosten;
• Voorschot stookkosten: € 64,52.
• ‘niet bewoningsclausule’ en asbestclausule van toepassing.
Kenmerken
| Plaats | Leiden |
|---|---|
| Vraagprijs | 215.000 k.k. |
| Status | Verkocht |
| Beschikbaar per | In overleg |
| Soort woning | Appartement |
| Bouwjaar | 1971 |
| Energielabel | E |
| Woonoppervlakte | 40m² |
| Aantal kamers | 2 |
| Bergruimte | Box |
| Opp. bergruimte | 4m² |
| Voorzieningen | Tv kabel, buitenzonwering, lift, natuurlijke ventilatie |
| Parkeren | Openbaar parkeren |














Persoonlijk


