DEZE WONING IS INMIDDELS MONDELING VERKOCHT
Ideale starterswoning met buitenruimte én privé parkeerplek in centrum van Leiden.
Een zonnige hoekwoning met prachtig uitzicht komt in dit pand maar weinig beschikbaar dus grijp deze kans!
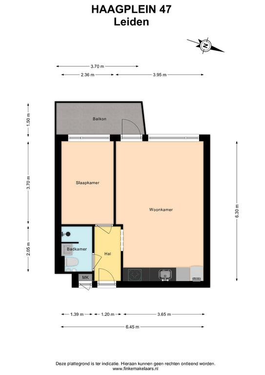
Op de derde verdieping van dit centraal gelegen en goed onderhouden appartementencomplex is deze nette twee kamer woning beschikbaar. Vanuit de centrale hal is de etage middels trap en lift bereikbaar. De entree komt uit in een gang waarvandaan de lichte en ruime woonkamer te bereiken is. De woonkamer is voorzien van een neutrale houten parketvloer en geeft toegang tot het ruime balkon, gelegen op het Zuiden. De open keuken is modern, luxe en voorziet in een elektrische kookplaat met circulatie zuigkap, oven, inbouwkoelkast, vaatwasser en inbouw koel- vriescombinatie alsmede een wasmachine aansluiting. De slaapkamer is rustig gelegen, bereikbaar vanuit de hal en heeft prettig zicht op de groene omgeving achter het pand. De badkamer is met toilet, een wastafel en een inloopdouche. Tevens beschikt de woning over voldoende bergruimte door de privé berging op de begane grond, een parkeerplaats welke alleen toegankelijk is voor bewoners en een gemeenschappelijke tuin aan de Rijn. De woning is gunstig gelegen ten opzichte van het centrum, horecagelegenheden en het centraal station (5 minuten afstand). Uitvalswegen zoals de A4, N11 en A44 zijn tevens op korte afstand gelegen.
Bijzonderheden:
• Bieden vanaf: € 272.000,- k.k.
• Gebruiksoppervlakte: 40m2;
• Energielabel: F
• Dubbele beglazing;
• Privé berging in souterrain;
• Privé balkon op het Zuiden;
• Privé parkeerplaats;
• Gedeelde tuin aan de Rijn;
• Bijdrage VvE: € 193,62 per maand exclusief voorschot stookkosten
• ‘niet bewoningsclausule’ en asbestclausule van toepassing;
Kenmerken
| Plaats | Leiden |
|---|---|
| Vraagprijs | 272.000 k.k. |
| Status | Verkocht |
| Beschikbaar per | In overleg |
| Soort woning | Appartement |
| Bouwjaar | 1973 |
| Energielabel | F |
| Woonoppervlakte | 40m² |
| Aantal kamers | 2 |
| Bergruimte | Box |
| Opp. bergruimte | 5m² |
| Voorzieningen | Mechanische ventilatie, tv kabel, lift, natuurlijke ventilatie |
| Parkeren | Op eigen terrein, op afgesloten terrein |














Persoonlijk

