Verborgen parel in de Pieterskerkbuurt – stijlvolle maisonnette met verrassende lichtheid
Verborgen achter de sfeervolle straatjes van de historische Pieterskerkbuurt schuilt een woning die zich niet in één oogopslag prijsgeeft. Deze bijzondere maisonnette, gelegen in het achterhuis van een volledig gerenoveerd pand uit 2019, biedt rust, licht en stijl op een plek die je alleen kent als je hem hebt gevonden.
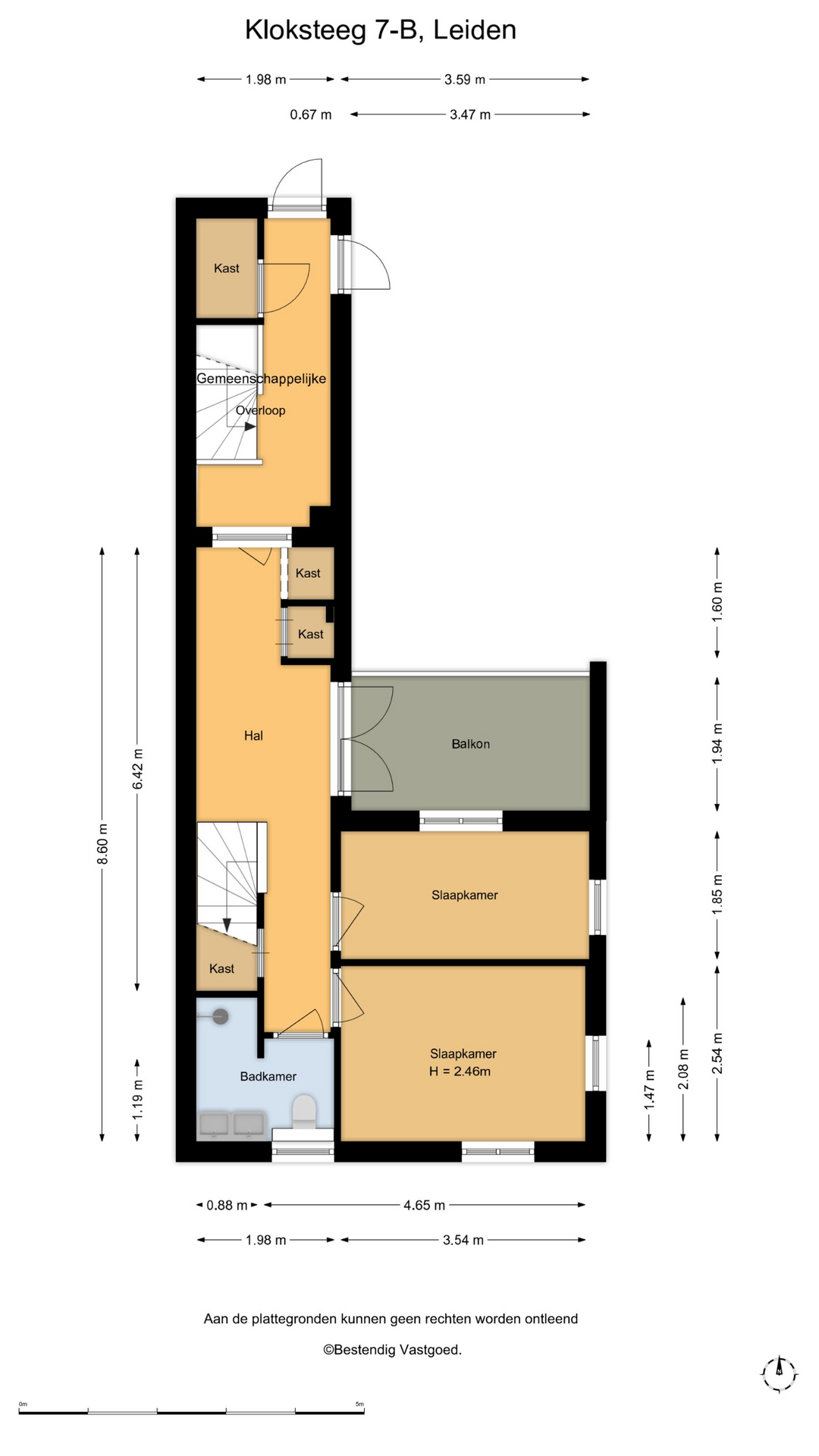
Via de eerste verdieping – je entree – betreed je de rustige slaapverdieping met twee comfortabele slaapkamers en strakke badkamer. De vaste, op maat gemaakte garderobekast in de hal en een praktische trapkast zorgen hier voor slimme, ingetogen luxe.
De echte verrassing wacht boven. De trap leidt naar de leefruimte op de tweede verdieping, waar ramen rondom een zee van licht binnenlaten. De moderne open keuken en royale woonkamer vormen een serene en stijlvolle plek om te wonen, ver boven de drukte van de stad.
Met energielabel A, een unieke ligging in het rustige achterhuis, en de charme van een woning met geheimen die zich stukje bij beetje onthullen, is dit een thuis voor wie zoekt naar iets meer dan standaard.
Een plek om te ontdekken. En om te koesteren.
Ideale ligging:
– Op marktdagen (woensdag en zaterdag) binnen 5 minuten op de markt voor verse boodschappen
– Nieuwe Rijn, Breestraat en Doezastraat nodigen uit tot gezellig winkelen
– Ontspannen op een van de vele terrasjes of in het nabijgelegen Van der Werf Park
– Centraal Station en Station Lammenschans op slechts 5 minuten fietsafstand
Eerste verdieping
– Veilige entree op de begane grond met dubbele deur
– Ruime hal met vaste kasten
– 2 slaapkamers
– Badkamer
– Heerlijk dakterras op het oosten, perfect voor ochtendkoffie in de zon
Tweede verdieping:
– Lichte woonkamer met hoge plafonds en vaste trap naar plat dak (mogelijkheden voor een dakterras?)
– Moderne hoekkeuken met vaatwasser, inductiekookplaat, oven, ingebouwde koelkast én wasmachine
Bijzonderheden:
– Moderne instapklare woning met 2 slaapkamers
– Geschikt voor werkende alleenstaanden of jonge stellen
– Energielabel A voor lage energiekosten
– Volledig gerenoveerd in 2019
– Uitstekend onderhouden
Dit stijlvolle appartement combineert modern comfort met de charme van historisch Leiden, en biedt een unieke kans om te wonen in het kloppende hart van de stad. Ideaal voor wie op zoek is naar een energiezuinige woning op een toplocatie met alle voorzieningen binnen handbereik.
Kenmerken
| Plaats | Leiden |
|---|---|
| Vraagprijs | 395.000 k.k. |
| Status | Verkocht |
| Beschikbaar per | In overleg |
| Soort woning | Appartement |
| Bouwjaar | 1650 |
| Energielabel | A |
| Woonoppervlakte | 69m² |
| Aantal kamers | 3 |
| Parkeren | Betaald parkeren, parkeervergunningen |














Persoonlijk



