Sfeervolle portiekflat met prachtig uitzicht over de Zijl – centraal gelegen!
Welkom in dit sfeervolle 3-kamerappartement gelegen op de tweede verdieping aan de Paramaribostraat 139, waar comfort en uitzicht samenkomen. Vanuit de woonkamer geniet je van een weids uitzicht over het water, terwijl de indeling zorgt voor een fijne balans tussen open leefruimte en privacy. De ligging is ideaal: rustig wonen, maar met alle stadse voorzieningen op loopafstand. Een plek die direct als thuis voelt.
Centrale ligging met alles binnen handbereik
In de directe omgeving is volop parkeergelegenheid aanwezig. Op loopafstand ligt het Kooiplein, met onder andere een supermarkt, drogisterij en een visboer om de hoek. Binnen tien minuten fietsen bereikt u station Leiden Centraal, met uitstekende verbindingen per trein en bus. Ook het sfeervolle, historische stadscentrum ligt op korte afstand en biedt een gevarieerd aanbod aan winkels, horecagelegenheden en musea. Voor gezinnen zijn er diverse basis- en middelbare scholen, evenals sportverenigingen, in de nabije omgeving te vinden. Daarnaast zijn de uitvalswegen A4, A44 en N11 richting Alphen aan den Rijn en Utrecht goed en snel bereikbaar.
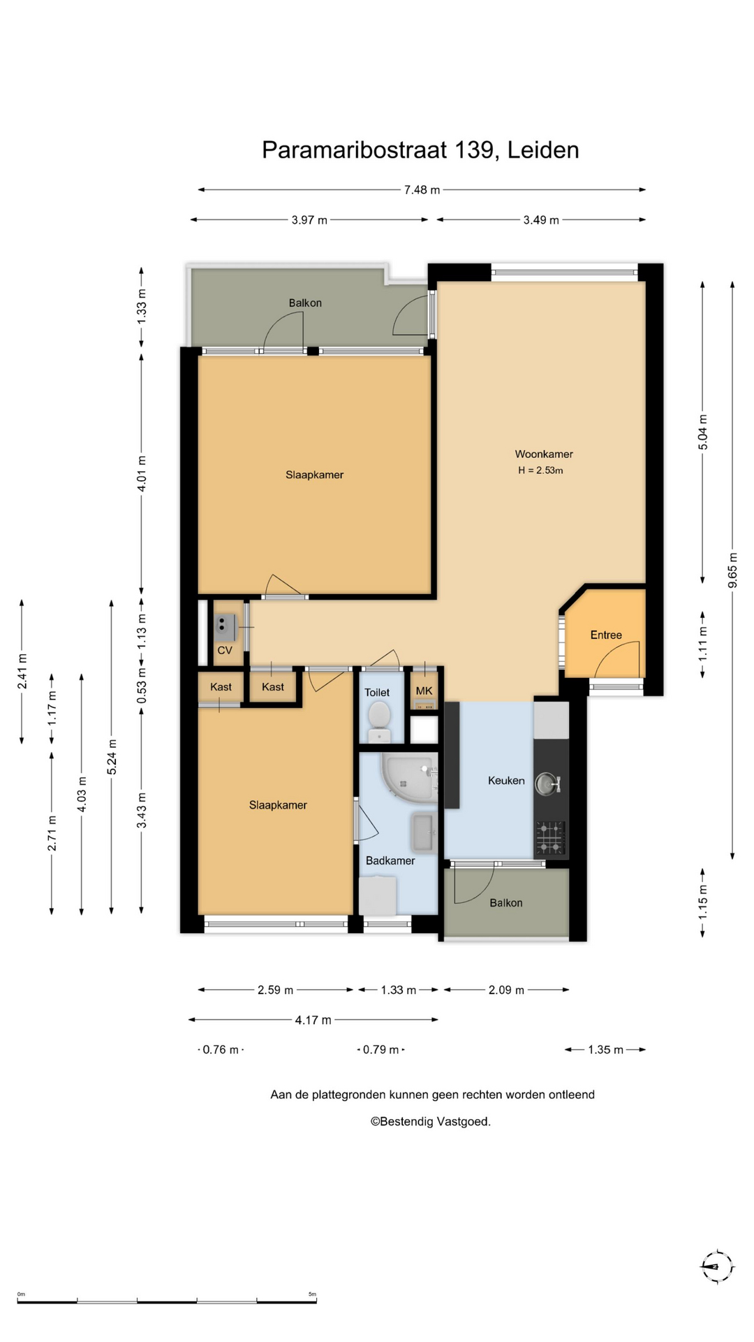
Indeling
Bij binnenkomst valt direct de ruime en lichte woonkamer op, voorzien van een groot raam dat zorgt voor een overvloed aan natuurlijk daglicht. De open keuken sluit hier naadloos op aan en creëert een gezellige sfeer – ideaal voor wie houdt van koken en samenzijn.
Zowel vanuit de woonkamer als de hoofdslaapkamer heb je toegang tot het balkon met een prachtig uitzicht over de Zijl. In de zomer is het hier heerlijk vertoeven terwijl de bootjes rustig voorbijvaren op weg naar de Kaag en het Joppe – een levendig en rustgevend tafereel.
De keuken is praktisch ingericht en voorzien van een ingebouwde koelkast en vriezer, een gasstel én toegang tot een tweede balkon. Daarnaast is er extra opbergruimte aanwezig, ideaal voor de kookliefhebber.
De woning beschikt over een apart toilet en een ruime badkamer die van alle gemakken is voorzien. Hier vind je een moderne, afsluitbare douchecabine, een wastafel, aansluiting voor de wasmachine én voldoende kastruimte voor al je toiletspullen, handdoeken en meer.
De hoofdslaapkamer is royaal en biedt direct toegang tot het balkon aan de Zijlzijde. De tweede slaapkamer is eveneens ruim opgezet, voorzien van meerdere ramen voor een prettige lichtinval – perfect als kinderkamer, werkkamer of logeerkamer.
Tot slot beschikt de woning over een eigen berging, perfect voor het stallen van fietsen of het opbergen van overige spullen.
Bijzonderheden:
– een maandelijkse VvE bijdrage van € 150,00
– Parkeren (middels bewonersvergunning en/of betaald parkeren) kan voor de deur van het complex
– Oplevering in overleg
– actieve VvE
– asbestclausule van toepassing
– ouderdomsclausule van toepassing
– niet zelfbewoningsclausule van toepassing
Kenmerken
| Plaats | Leiden |
|---|---|
| Vraagprijs | 325.000 k.k. |
| Status | Verkocht |
| Beschikbaar per | In overleg |
| Soort woning | Appartement |
| Energielabel | E |
| Woonoppervlakte | 67m² |
| Aantal kamers | 3 |
| Bergruimte | Inpandig |
| Opp. bergruimte | 6m² |
| Parkeren | Parkeervergunningen |














Persoonlijk


